|
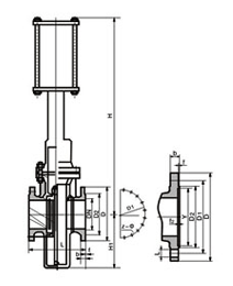
有導流(liú)孔平闆閘閥(fa)
|
|
發表時間:2011-5-26 文(wén)字 〖 大
中
小
〗 閱(yuè)讀次數:5614 [關閉(bì)窗口]
|
|
|
|
|
公稱壓(ya)力PN
|
DN
|
L
|
D
|
D1
|
D2
|
Do
|
f
|
b
|
H
|
H1
|
N-ØD
|
|
1.6MPa
|
50
|
178
|
160
|
125
|
100
|
250
|
3
|
16
|
584
|
80
|
4-18
|
|
65
|
190
|
180
|
145
|
120
|
250
|
3
|
18
|
634
|
95
|
4-18
|
|
80
|
203
|
195
|
160
|
135
|
250
|
3
|
20
|
688
|
100
|
8-18
|
|
100
|
229
|
215
|
180
|
155
|
300
|
3
|
20
|
863
|
114
|
8-18
|
|
125
|
254
|
245
|
210
|
185
|
350
|
3
|
22
|
940
|
132
|
8-18
|
|
150
|
267
|
280
|
240
|
210
|
350
|
3
|
24
|
1030
|
150
|
8-23
|
|
200
|
292
|
335
|
295
|
265
|
350
|
3
|
26
|
1277
|
168
|
12-15
|
|
250
|
330
|
405
|
355
|
320
|
400
|
3
|
30
|
1491
|
203
|
12-15
|
|
300
|
356
|
460
|
410
|
375
|
450
|
4
|
30
|
1701
|
237
|
12-15
|
|
350
|
381
|
520
|
470
|
435
|
500
|
4
|
34
|
1875
|
265
|
16-25
|
|
400
|
406
|
580
|
525
|
485
|
305
|
4
|
36
|
2180
|
300
|
16-30
|
|
450
|
432
|
640
|
585
|
545
|
305
|
4
|
40
|
2440
|
325
|
20-30
|
|
500
|
457
|
705
|
650
|
608
|
305
|
4
|
44
|
2860
|
360
|
20-34
|
|
600
|
508
|
840
|
770
|
718
|
305
|
5
|
48
|
3450
|
425
|
20-41
|
|
700
|
610
|
910
|
840
|
788
|
305
|
5
|
50
|
3960
|
460
|
24-41
|
|
800
|
660
|
1020
|
950
|
898
|
305
|
5
|
52
|
4550
|
512
|
24-41
|
|
900
|
711
|
1120
|
1050
|
998
|
250
|
5
|
54
|
5250
|
565
|
28-41
|
|
1000
|
811
|
1255
|
1170
|
1110
|
250
|
5
|
56
|
5870
|
630
|
28-48
|
|
2.5MPa
|
50
|
178
|
160
|
125
|
100
|
250
|
3
|
20
|
584
|
80
|
4-18
|
|
65
|
190
|
180
|
145
|
120
|
250
|
3
|
22
|
634
|
95
|
8-18
|
|
80
|
203
|
195
|
160
|
135
|
250
|
3
|
22
|
688
|
100
|
8-23
|
|
100
|
229
|
230
|
190
|
160
|
300
|
3
|
24
|
863
|
114
|
8-25
|
|
125
|
254
|
270
|
220
|
188
|
350
|
3
|
28
|
940
|
132
|
8-25
|
|
150
|
267
|
300
|
250
|
218
|
350
|
3
|
30
|
1030
|
150
|
12-15
|
|
200
|
292
|
360
|
310
|
278
|
350
|
3
|
34
|
1277
|
168
|
12-15
|
|
250
|
330
|
425
|
370
|
332
|
400
|
3
|
36
|
1491
|
203
|
12-15
|
|
300
|
356
|
485
|
430
|
390
|
450
|
4
|
40
|
1701
|
237
|
16-30
|
|
350
|
381
|
550
|
490
|
448
|
500
|
4
|
44
|
1875
|
265
|
16-34
|
|
400
|
406
|
610
|
550
|
505
|
305
|
4
|
48
|
2180
|
300
|
16-34
|
|
450
|
432
|
660
|
600
|
555
|
305
|
4
|
50
|
2440
|
325
|
20-34
|
|
500
|
457
|
730
|
660
|
610
|
305
|
4
|
52
|
2860
|
360
|
20-41
|
|
600
|
508
|
840
|
770
|
718
|
305
|
5
|
56
|
3450
|
425
|
20-41
|
|
700
|
610
|
955
|
875
|
815
|
305
|
5
|
60
|
3960
|
460
|
24-48
|
|
800
|
660
|
1070
|
990
|
930
|
305
|
5
|
64
|
4550
|
512
|
24-48
|
|
900
|
711
|
1180
|
1090
|
1025
|
250
|
5
|
66
|
5250
|
595
|
28-54
|
|
1000
|
811
|
1305
|
1210
|
1140
|
250
|
5
|
68
|
5870
|
660
|
28-58
|
|
4.0MPa
|
50
|
250
|
160
|
125
|
100
|
250
|
3
|
20
|
584
|
80
|
4-18
|
|
65
|
280
|
180
|
145
|
120
|
250
|
3
|
22
|
634
|
95
|
8-18
|
|
80
|
310
|
195
|
160
|
135
|
250
|
3
|
22
|
688
|
100
|
8-23
|
|
100
|
350
|
230
|
190
|
160
|
300
|
3
|
24
|
863
|
114
|
8-25
|
|
125
|
400
|
270
|
220
|
188
|
350
|
3
|
28
|
940
|
132
|
8-25
|
|
150
|
450
|
300
|
250
|
218
|
350
|
3
|
30
|
1030
|
150
|
12-15
|
|
200
|
550
|
375
|
320
|
282
|
350
|
3
|
34
|
1277
|
168
|
12-15
|
|
250
|
650
|
445
|
385
|
345
|
400
|
3
|
36
|
1491
|
203
|
12-15
|
|
300
|
750
|
510
|
450
|
408
|
450
|
4
|
40
|
1701
|
237
|
16-30
|
|
350
|
850
|
570
|
510
|
465
|
500
|
4
|
44
|
1875
|
265
|
16-34
|
|
400
|
950
|
655
|
585
|
535
|
305
|
4
|
48
|
2180
|
300
|
16-34
|
|
450
|
1050
|
680
|
610
|
560
|
305
|
4
|
50
|
2440
|
325
|
20-34
|
|
500
|
1150
|
755
|
670
|
612
|
305
|
4
|
52
|
2860
|
360
|
20-41
|
|
600
|
1350
|
890
|
795
|
730
|
305
|
5
|
56
|
3450
|
425
|
20-41
|
|
700
|
1450
|
995
|
900
|
835
|
305
|
5
|
60
|
3960
|
460
|
24-48
|
|
800
|
1650
|
1135
|
1030
|
960
|
305
|
5
|
64
|
4550
|
512
|
24-48
|
|
6.46MPa
|
50
|
250
|
175
|
135
|
105
|
-
|
26
|
3
|
4-23
|
340
|
250
|
|
80
|
310
|
210
|
170
|
140
|
-
|
30
|
3
|
8-23
|
508
|
300
|
|
100
|
350
|
250
|
200
|
168
|
-
|
32
|
3
|
8-25
|
680
|
300
|
|
150
|
450
|
340
|
280
|
240
|
-
|
38
|
3
|
8-34
|
800
|
400
|
|
200
|
550
|
405
|
345
|
300
|
-
|
44
|
3
|
12-34
|
875
|
500
|
|
250
|
650
|
470
|
400
|
352
|
-
|
48
|
3
|
12-41
|
1010
|
500
|
|
300
|
750
|
530
|
460
|
415
|
-
|
54
|
4
|
16-41
|
1180
|
550
|
|
350
|
850
|
595
|
525
|
475
|
-
|
60
|
4
|
16-41
|
1145
|
600
|
|
400
|
950
|
670
|
585
|
525
|
-
|
66
|
4
|
16-48
|
1280
|
600
|
|
450
|
1050
|
715
|
630
|
570
|
-
|
70
|
4
|
20-48
|
1415
|
700
|
|
500
|
1150
|
800
|
705
|
610
|
-
|
76
|
4
|
20-54
|
1560
|
750
|
|
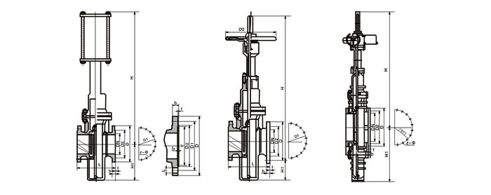
公稱壓力(lì)PN
|
DN
|
L
|
D
|
D1
|
D2
|
Y
|
Do
|
f
|
f2
|
b
|
H
|
H1
|
N-ØD
|
|
4.0MPa
|
50
|
250
|
160
|
125
|
100
|
88
|
250
|
3
|
4
|
20
|
584
|
80
|
4-18
|
|
65
|
280
|
180
|
145
|
120
|
110
|
250
|
3
|
4
|
22
|
634
|
95
|
8-18
|
|
80
|
310
|
195
|
160
|
135
|
121
|
250
|
3
|
4
|
22
|
679
|
102
|
8-18
|
|
100
|
350
|
230
|
190
|
160
|
150
|
300
|
3
|
4.5
|
24
|
863
|
115
|
8-23
|
|
125
|
400
|
270
|
220
|
188
|
176
|
350
|
3
|
4.5
|
28
|
940
|
133
|
8-25
|
|
150
|
450
|
300
|
250
|
218
|
204
|
350
|
3
|
4.5
|
30
|
1040
|
152
|
8-25
|
|
200
|
550
|
375
|
320
|
282
|
260
|
350
|
3
|
4.5
|
38
|
1282
|
188
|
12-15
|
|
250
|
650
|
445
|
385
|
345
|
313
|
400
|
3
|
4.5
|
42
|
1495
|
223
|
12-34
|
|
300
|
750
|
510
|
450
|
408
|
364
|
450
|
4
|
4.5
|
46
|
1701
|
250
|
16-34
|
|
350
|
850
|
570
|
510
|
465
|
422
|
500
|
4
|
5
|
52
|
1880
|
280
|
16-34
|
|
400
|
950
|
655
|
585
|
535
|
474
|
305
|
4
|
5
|
58
|
2200
|
310
|
20-41
|
|
450
|
1050
|
680
|
610
|
560
|
524
|
305
|
4
|
5
|
60
|
2480
|
335
|
20-41
|
|
500
|
1150
|
755
|
670
|
612
|
576
|
305
|
4
|
5
|
62
|
2890
|
380
|
20-48
|
|
600
|
1350
|
890
|
795
|
730
|
678
|
305
|
5
|
6
|
62
|
3460
|
450
|
20-454
|
|
700
|
1450
|
995
|
900
|
835
|
768
|
305
|
5
|
6
|
68
|
3985
|
500
|
24-54
|
|
800
|
1650
|
1135
|
1030
|
960
|
876
|
305
|
5
|
6
|
76
|
470
|
570
|
24-58
|
|
6.4MPa
|
50
|
250
|
175
|
135
|
105
|
88
|
250
|
3
|
4
|
26
|
584
|
90
|
4-23
|
|
65
|
280
|
200
|
160
|
130
|
110
|
250
|
3
|
4
|
28
|
634
|
105
|
8-23
|
|
80
|
310
|
210
|
170
|
140
|
121
|
250
|
3
|
4
|
30
|
679
|
110
|
8-23
|
|
100
|
350
|
250
|
200
|
168
|
150
|
300
|
3
|
4.5
|
32
|
763
|
130
|
8-25
|
|
125
|
400
|
295
|
240
|
202
|
176
|
350
|
3
|
4.5
|
36
|
970
|
150
|
8-30
|
|
150
|
450
|
340
|
280
|
240
|
204
|
350
|
3
|
4.5
|
38
|
1038
|
175
|
8-34
|
|
200
|
550
|
405
|
345
|
300
|
260
|
350
|
3
|
4.5
|
44
|
1282
|
210
|
12-34
|
|
250
|
650
|
470
|
400
|
352
|
313
|
400
|
3
|
4.5
|
48
|
1495
|
240
|
12-41
|
|
300
|
750
|
530
|
460
|
412
|
364
|
450
|
4
|
4.5
|
54
|
1965
|
270
|
16-41
|
|
350
|
850
|
595
|
525
|
475
|
422
|
500
|
4
|
5
|
60
|
2185
|
300
|
16-41
|
|
400
|
950
|
670
|
585
|
525
|
474
|
305
|
4
|
5
|
66
|
2573
|
335
|
16-48
|
|
450
|
1050
|
715
|
630
|
570
|
524
|
305
|
4
|
5
|
68
|
2800
|
360
|
20-48
|
|
500
|
1150
|
800
|
705
|
640
|
576
|
305
|
4
|
5
|
70
|
3280
|
405
|
20-54
|
|
600
|
1350
|
930
|
820
|
750
|
678
|
305
|
5
|
6
|
76
|
3800
|
470
|
20-58
|
|
10.0MPa
|
50
|
250
|
195
|
145
|
112
|
88
|
250
|
3
|
4
|
28
|
590
|
100
|
4-25
|
|
65
|
280
|
220
|
170
|
138
|
110
|
250
|
3
|
4
|
32
|
640
|
115
|
8-25
|
|
80
|
310
|
230
|
180
|
148
|
121
|
250
|
3
|
4
|
34
|
680
|
120
|
8-25
|
|
100
|
350
|
265
|
210
|
172
|
150
|
300
|
3
|
4.5
|
38
|
870
|
135
|
8-30
|
|
125
|
400
|
310
|
250
|
210
|
176
|
350
|
3
|
4.5
|
42
|
980
|
155
|
8-34
|
|
150
|
450
|
350
|
290
|
250
|
204
|
350
|
3
|
4.5
|
46
|
1100
|
180
|
12-34
|
|
200
|
550
|
430
|
360
|
312
|
260
|
350
|
3
|
4.5
|
54
|
1315
|
220
|
12-41
|
|
250
|
650
|
500
|
430
|
382
|
313
|
400
|
3
|
4.5
|
60
|
1605
|
255
|
12-41
|
|
300
|
750
|
585
|
500
|
442
|
364
|
450
|
4
|
4.5
|
70
|
1925
|
295
|
16-48
|
|
350
|
850
|
665
|
560
|
498
|
422
|
500
|
4
|
5
|
76
|
2280
|
335
|
16-54
|
|
400
|
950
|
715
|
620
|
558
|
474
|
305
|
4
|
5
|
80
|
2580
|
360
|
16-54
|
文章分頁:
1
|
|
|
|